EAST
NORTH
WEST
SOUTH

HATFIELD

HOUSE COLOUR: Green
HOUSE EMBLEM: White Rose
SPECIALISM: Music

Hatfield is positioned between Osborne and the Main Hall. By the 1990s, the study room downstairs was converted into a tuck shop, with the offices being to the left. The common-room between the two contained a piano. Hatfield lost its pinball early (c.1991) following a series of break-ins.

Hatfield was dedicated to music. Upstairs was a bit like the tardis. In the '90s, there were only two classrooms: a small one belonging to Mr Kirkpatrick and a larger room belonging to Mrs Leeder. Both contained pianos. There was also a store-room for instruments and an office area with the Atari ST in it. Furthermore, a third classroom (which I remember being used by Mr Kirkpartick at the turn of the '90s) spent time as a computer room (back in the BBC days / early '90s) and subsequently as a practice room complete with fancy cubicles (in the late Archimedes / early PC Days, mid '90s).

Since the new Lower School building arrived, the rooms have been rejigged once more, with the offices and the practice rooms being opened up as classrooms again. Mrs Leeder's room is H1, the former offices H2, the former practice rooms H3, and KP's old room H4. They are still used for Music.

During the Easter holidays of 2004, Hatfield seemed to be undergoing some internal surgery, so the above may now be out of date.

The flyovers run east west. To the east is the Main Hall, and to the west is Osborne, with a junction to the Old 6th Form Base. Externally speaking, Hatfield house is a reflection of Osborne.

Hatfield house-base was a good place to eat your sandwiches. It can also conceivably be used as a canteen, as it adjoins the kitchens, and was used as such in the late 1990s following the rededication of the Old 6th Form Base.

In my year (1990-5), Hatfield pupils were generally set-mixed with Osborne.

Hatfield is named after the Hatfield family who were rich and lived in Laughton. Anthony Hatfield owned lots of land back in the 17th century, while his 12 year old daughter, Martha Hatfield (aka The Wise Virgin of Laughton), spouted "glorious truths concerning Christ, faith and other subjects" when in a cataleptic coma in 1652.

View of Hatfield from outside the north door of the Main Hall, showing the only free-standing cornering flyover on campus. The parking spaces below the flyover were favoured by Mr Lovett among others. Note the pathetic litte fence failing to protect the area of grass centre-right. The slight peak in the treeline on the right of shot is the roof of one of the History Terrapins, and the Old 6th Form Base can barely be made out behind the foliage on the left.


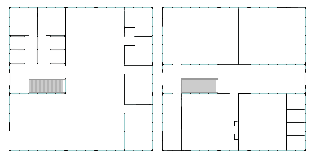
Rough plan of Hatfield, c.'96. The entrance is on the left.
The south end of the first floor is divided into the following: a store room, Mr Kirkpatrick's room (complete with cupboard), a practice room and four practice cubicles. Note that because of the window arrangement, two of the three partition walls on the cubicles run up against glass at the perimeter wall. This can just be made out on the previous photo. 
This south run of rooms is represented pretty accurately here, being based on a number of photographs, some of which can be found here.
As far as the north rooms are concerned, the left room is Mrs Leeder's, and the right room was somehow divided into two (perhaps straight down the middle). 
Note that the partitions in the eastern rooms have since been removed.
 

Heads of House:

Mr McCarthy & Mrs Thorpe (1963-64)
Mr McCarthy & Miss England (1964-68)
Mr Lewis & Miss England (1968-70)
Mr Birch & Mrs J Cooke (1970s)
Mr Mather with Mr Fox and Mrs M Cooke (mid/late 1980s)
Mr Lovett (1990s)
Mr Platt (2011+)